Eco Green Sài Gòn

Mặt tiền Đại lộ Nguyễn Văn Linh giao đường Tân Thuận Tây, Tân Thuận Tây, Quận 7, Hồ Chí Minh View on Map
Price: Contact
44 - 95 m2 1 - 3 PN 1 - 2 WC

CategoryDetails
Project NameECO GREEN SAIGON
LocationFrontage of Nguyen Van Linh Boulevard, intersection with Tan Thuan Tay Street, Tan Thuan Ward, District 7, Ho Chi Minh City
DeveloperXuan Mai Investment and Construction JSC (Xuan Mai Corp)
Total Land Area14,360 m² – Construction density: 30%
Number of Towers7 residential towers, with 2–3 basement levels for parking
Main Contractor (EPC)Xuan Mai Corp
Project TypeHigh-end condominiums, commercial centers, shophouses, officetels, and schools
Total Units

4,000 units

1BR: 44 m²

2BR: 52 – 60 – 65 – 72 – 75 m²

3BR: 81 – 86 – 95 m²

Design Concept11 units per floor, 5 elevators; nearly 100% are corner units with two open sides, and all apartments feature balconies with external views.

PROJECT LOCATION - ECOGREEN SAI GON

Eco Green Sai Gon – Premium Central Location District 7

Eco Green Sai Gon is located at 39B Nguyen Van Linh Boulevard, Tan Thuan Tay Ward, District 7. Located only 300 meters from Tan Thuan Bridge, the project's position is highly valued by experts and investors for its tremendous development potential and strong appreciation prospects.

Strategic Regional Positioning

Eco Green Sai Gon is positioned between the three largest urban districts of Ho Chi Minh City: District 1, Phu My Hung urban area (District 7), and the new Thu Thiem urban district (District 2). Travel time to District 1 is only 7 minutes via Nguyen Tat Thanh – Tan Thuan Bridge (District 4).

Comprehensive Surrounding Amenities

From its strategic location, residents enjoy complete access to modern urban amenities in the Phu My Hung district and surrounding areas:

Shopping and Commercial Centers
Crescent Mall, Coop Mart supermarket, Parkson Paragon, VivoCity shopping district, Tan My Market, and the premium AEON Mall 5-story shopping center integrated within the project.

Healthcare Facilities
Pháp-Việt International Hospital, Tam Duc Heart Hospital, District 7 General Hospital, and other quality medical facilities.

Educational Excellence
Kindergartens, primary-secondary-high schools, Ton Duc Thang University, Marketing University, RMIT University, Business Administration College, Police University, and other prestigious institutions.

Recreation and Sports
Adjacent to Huong Tram Park spanning 22 hectares, Half Moon Lake, Star Bridge, Phu My Hung Golf Course, tennis courts, cinemas at Crescent Mall, Parkson, VivoCity, and other entertainment venues.

Internal Amenities of the Eco Green Saigon Project

Eco Green Saigon – Comprehensive Premium Amenity Ecosystem

1. Parks, Landscapes, and Green Spaces

In contemporary Ho Chi Minh City, discovering a centrally located project with expansive green space is extraordinarily challenging given acute land scarcity and premium pricing. All developers prioritize maximum profit extraction through construction density. Eco Green Saigon's emergence marked a transformative milestone in real estate – introducing a green project at competitive pricing.

With only 27% construction density on 14.36 hectares, Eco Green Saigon features 3.6-hectare internal parks while adjoining the magnificent 22-hectare Huong Tram Park – making it exceptionally rare among Ho Chi Minh City projects, offering residents combined green spaces totaling 25 hectares of fresh air and spacious recreational environments.

2. Premium Shopping Mall and Golf Course

Eco Green Saigon houses the world's largest retail shopping center – AEON Mall. Established in 1758 with over 250 years of history, AEON operates the oldest supermarket chain system featuring 179 franchises throughout Japan and internationally. An integrated golf course and swimming facilities within the shopping center itself provide residents with a sophisticated entertainment, shopping, dining, and recreational hub at the highest regional standards.

3. Swimming Pools, Fitness Center, and Spa

The residential complex features seven swimming pools spanning 5,500m². These include temperature-regulated skyview pools exclusively accessible to residents via resident cards, ensuring absolute cleanliness and safety with 24-hour lifeguard supervision. Each block is equipped with minimum 2 fitness centers and spas per block, comprehensively meeting all resident needs.

4. Schools and Community Activity Centers

Beyond comprehensive premium amenities, Eco Green Saigon includes a 1,000m²+ community activity center accommodating up to 1,100 guests for celebrations, religious ceremonies, weddings, and social functions. Residents simply register availability with building management – no additional fees. The experience rivals premium external restaurants and venues. Kim Dong Elementary School has operated officially since 2018, eliminating parental concerns about daily student commuting through congested streets.

5. 6-Star Hotel and Helicopter Landing Pad

Within the residential complex stands a 6-star hotel from top-10 global hotel brand – Hyatt. Established in 1957 with approximately 830 luxury hotels worldwide, this 69-story tower initiated construction in Q1 2020, featuring an on-roof helicopter landing pad. The Xuân Mai Group's successful partnership with this prestigious brand significantly enhances project value and maximizes resident benefits.

6. Eco Green Saigon Refuge Shelter

For developers, resident living environment and safety represent paramount concerns. Few projects offer dedicated refuge shelter for fire emergencies. Eco Green's developers designated 4 premium residential units as emergency evacuation shelters for residents – exemplifying the project's most elite amenity warranting serious buyer consideration.

Additional Premium Features:

Smart apartment design with zero dead angles and 100% corner units with dual facades

Premium mall entry with AEON five-story structure

Mini golf course on floor 5 of shopping center

25,000m² commercial space featuring premium shopping, dining, entertainment

International schools and educational institutions

Advanced security system with 24-hour surveillance and professional personnel

Central air-conditioning system with automatic backup generators

Community event center with 2,300m² conference and banquet facilities

How is the master plan design of Eco Green Saigon unique?

Eco Green Saigon – Sophisticated Architectural Design

Distinctive Façade Architecture

Eco Green Saigon features distinctive architectural design with apartment towers designed in three-curved-wing configuration, gracefully curving along Nguyen Van Linh Boulevard. This innovative design creates complete panoramic views encompassing District 1 center, Thu Thiem district, and Phu My Hung urban areas.

Tower Configuration and Base Design

Each apartment tower features 2-3 basement levels for parking, with base levels (Floors 1-2) housing shopping centers and resident amenities. All Eco Green Saigon apartments feature scientifically optimized design with zero dead angles, maximizing functionality and livability.

Tower Heights:

  • HR1 & HR2 Towers: 36 stories
  • M2 Tower: 30 stories
  • HR3 Tower: 28 stories

Apartment Specifications:

Each tower features 6 high-speed elevators per floor with only 11 residential units and 4 serviced apartments per floor, ensuring low density and exceptional privacy.

Unit Sizes:

  • 2-bedroom apartments: 63m² – 90.50m²
  • 3-bedroom apartments: 85m² – 95m²
  • Sophisticated Interior Design

All apartments feature open-concept layouts connecting rooms, kitchens, living areas, and logia (semi-open balconies), creating expansive perception and optimal functionality. Bedrooms include floor-to-ceiling windows providing abundant natural light, ventilation, and nature-inspired ambiance.

Premium Finishes Include:

  • 12mm industrial hardwood flooring
  • Teka stoves and range hoods
  • Duravit sanitary fixtures
  • Hansgrohe and Grohe premium faucets
  • Schneider electrical equipment
  • Panoramic View Orientation
  • The three-curved-wing design orientation delivers:
  • 180-degree panoramic city views
  • Saigon River sightlines
  • Huong Tram Park vistas
  • District 1 and Thu Thiem district perspectives
  • Multiple natural light exposure throughout day cycles

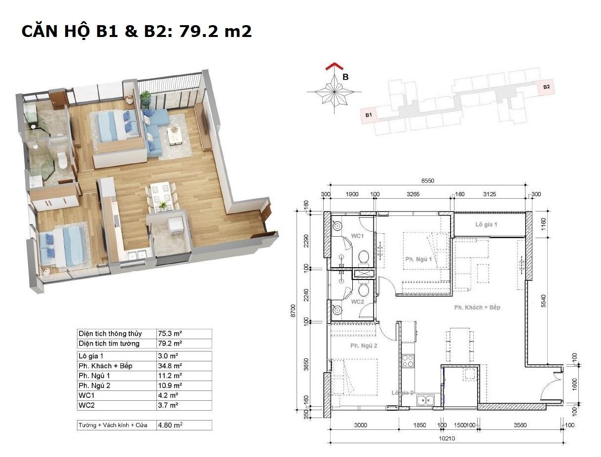
APARTMENT LAYOUT

Detailed Design of HR3 Apartments – Eco Green Saigon

MODEL HOUSE